Services
About Us
Work
Contact
Services
About Us
Work
Contact
Marco Magnano

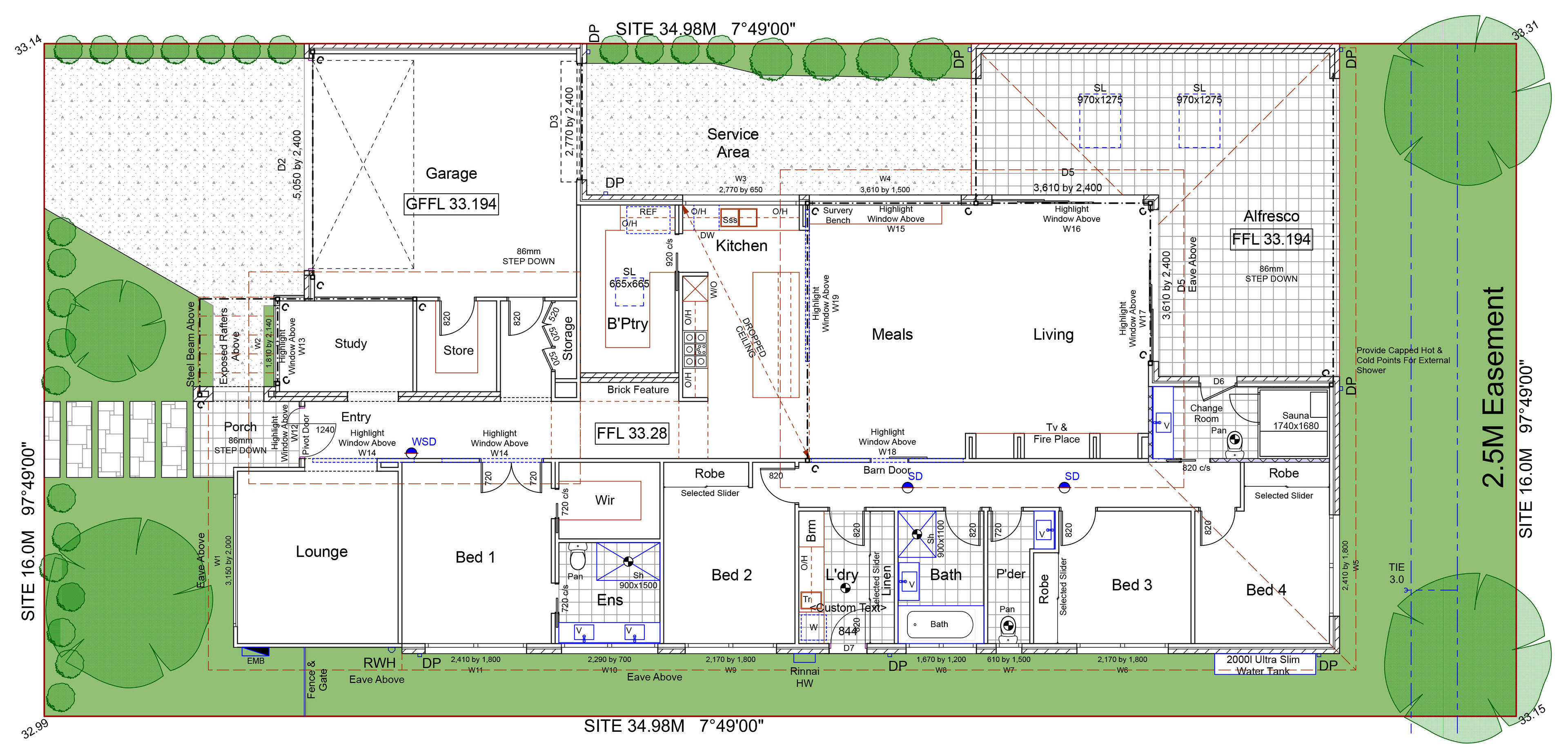
OCEAN GROVE - NEW BUILD

You may also like

Kalkallo ( New Build )
2020
PRESTON UNITS
2024
WATSONIA - EXTENSION
2023
ROMSEY - NEW BUILD
2024
MICKLEHAM - FACTORY/WAREHOUSE
2025
WATSONIA - EXTENSION
2020
BALWYN NORTH - NEW BUILD
2022
WHEELERS HILL NEW BUILD
2024
SOUTH MORANG - EXTENSION
2025
DIAMOND CREEK - NEW BUILD
2024
↑Back to Top