Services
About Us
Work
Contact
Services
About Us
Work
Contact
Marco Magnano

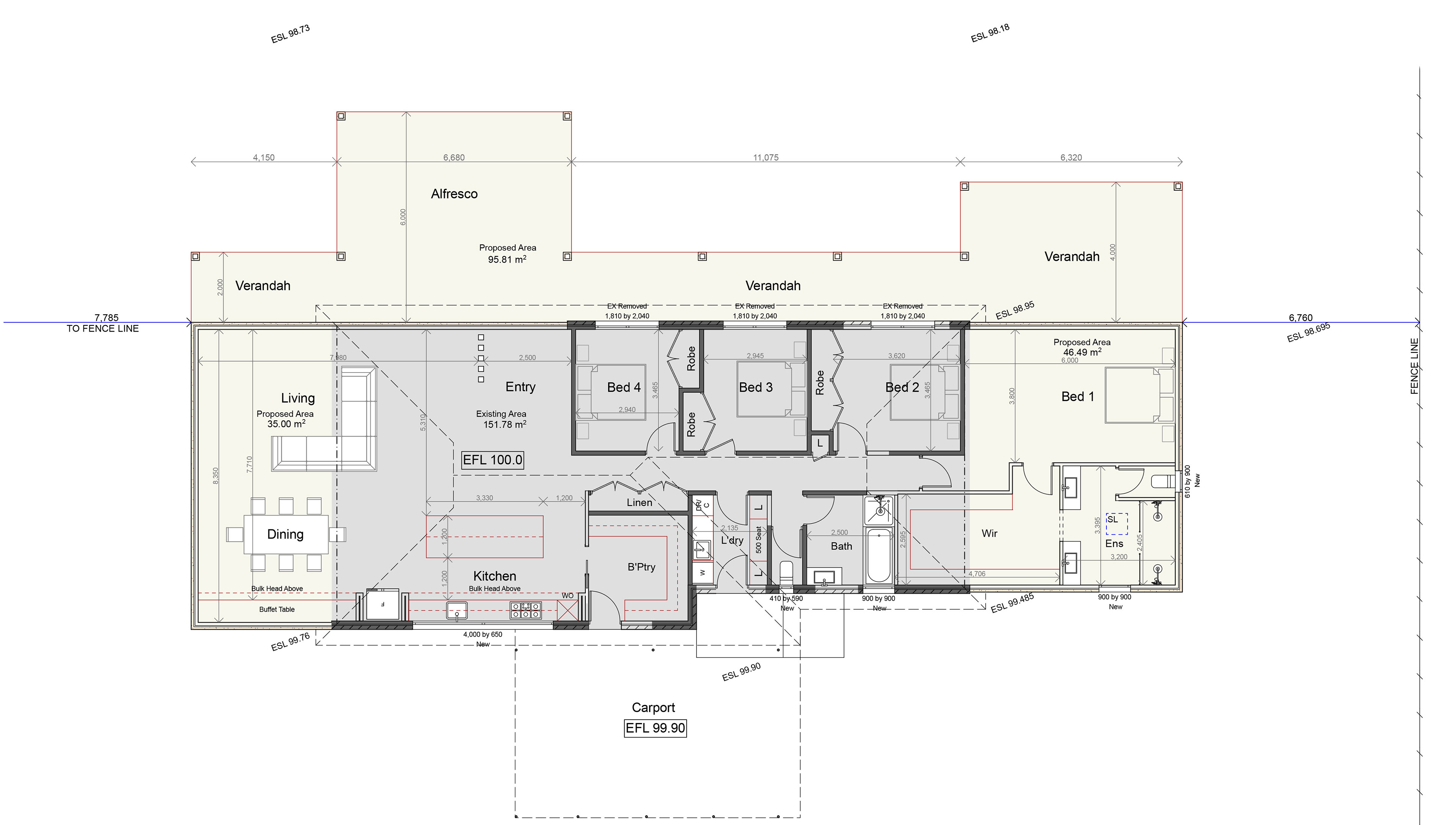
LEONARDS HILL - EXTENSION

You may also like

BUNDOORA - NEW BUILD
2025
WEST MEADOWS - NEW BUILD
2023
NULLA VALLE - NEW BUILD
2025
SEBASTOPOL - NEW BUILD
2025
BROADFORD - NEW BUILD
2025
WESTMEADOWS - EXTENION
2025
Kalkallo ( New Build )
2020
SEBASTOPOL - UNITS
2025
WATSONIA - EXTENSION
2020
DONCASTER UNITS
2024
↑Back to Top