Services
About Us
Work
Contact
Services
About Us
Work
Contact
Marco Magnano

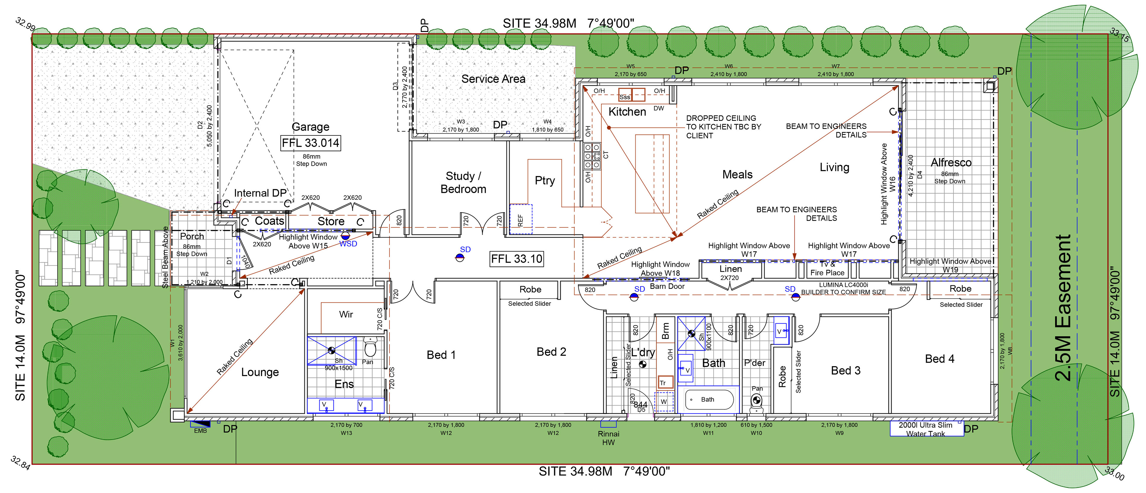
OCEAN GROVE - NEW BUILD

You may also like

LEONARDS HILL - EXTENSION
2024
MICKLEHAM - FACTORY/WAREHOUSE
2025
DONCASTER - UNITS
2023
ASHBURTON - NEW BUILD
2025
HIGHTON - NEW BUILD
2024
GLEN WAVERLY - NEW BUILD
2020
BALWYN - NEW BUILD
2025
WATTLE GLEN - EXTENSION
2025
LALOR - UNITS
2022
Kalkallo ( New Build )
2020
↑Back to Top