Services
About Us
Work
Contact
Services
About Us
Work
Contact
Marco Magnano

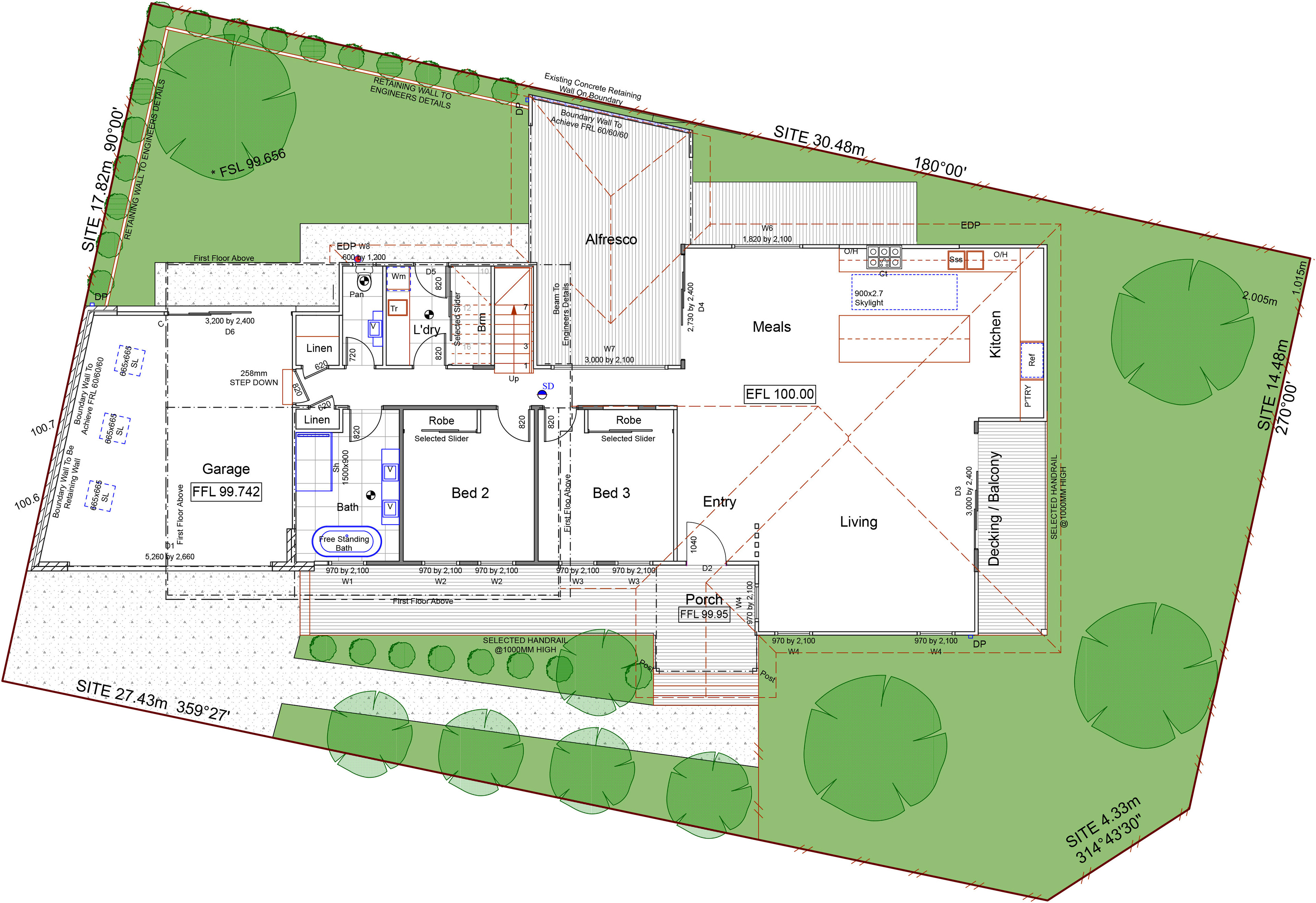
WATSONIA - EXTENSION

You may also like

WEST MEADOWS - NEW BUILD
2023
SOUTH MORANG - NEW BUILD
2025
HIGHTON - NEW BUILD
2024
Phillip Island
2020
CROYDEN - NEW BUILD
2024
RYE - NEW BUILD
2020
BROADFORD - NEW BUILD
2025
SMALL LOT HOUSING - EPPING
2024
PRESTON UNITS
2024
WATSONIA - EXTENSION
2023
↑Back to Top