Services
About Us
Work
Contact
Services
About Us
Work
Contact
Marco Magnano

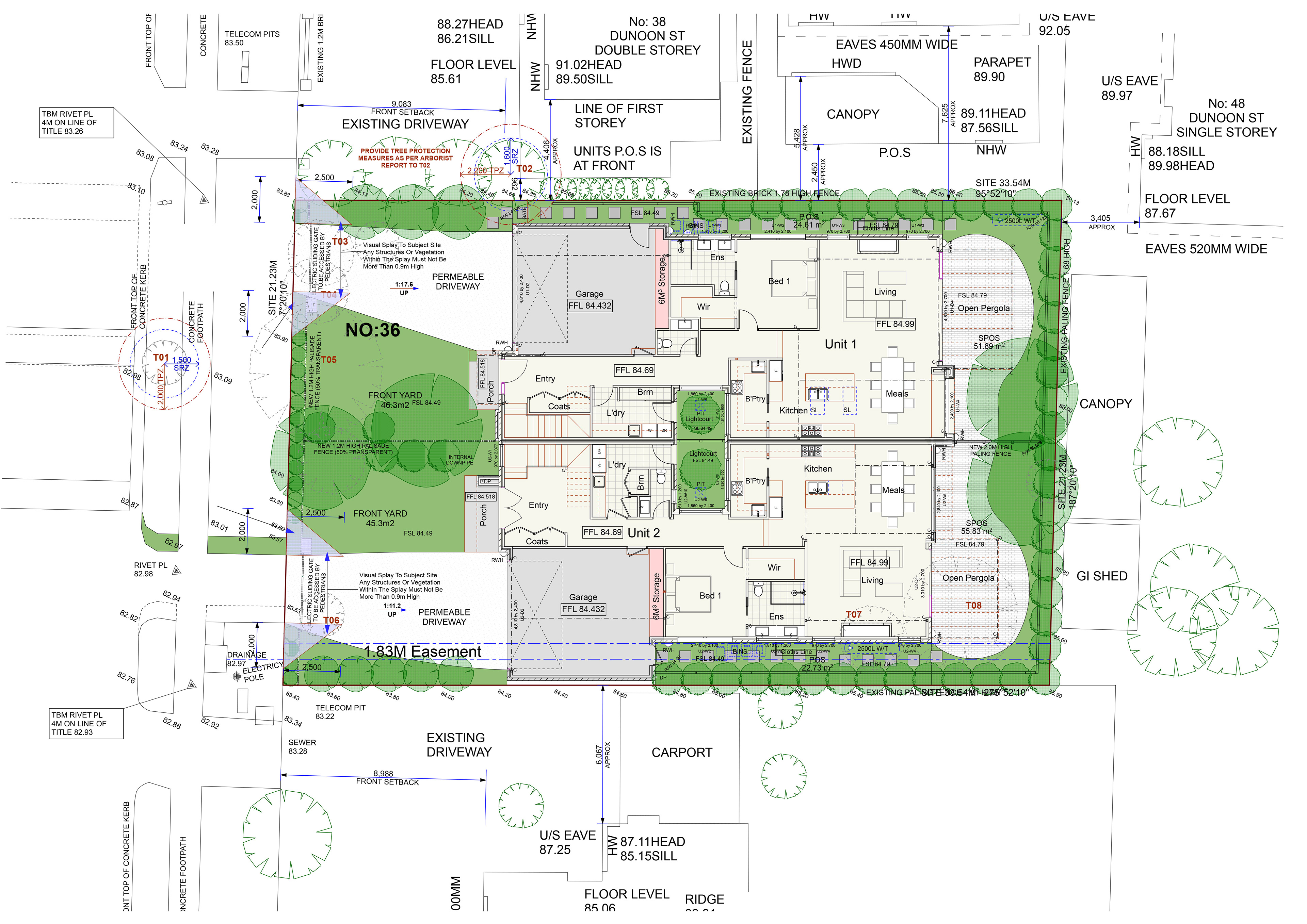
DONCASTER - UNITS

SIDE BY SIDE UNIT DEVELOPMENT

You may also like

DEANSIDE - NEW BUILD
2025
RYE - NEW BUILD
2020
SMALL LOT HOUSING - EPPING
2024
OCEAN GROVE - NEW BUILD
2022
BUNDOORA - NEW BUILD
2024
WESTMEADOWS - EXTENION
2025
BALWYN - NEW BUILD
2025
ROMSEY - NEW BUILD
2024
OCEAN GROVE - NEW BUILD
2022
SEBASTOPOL - NEW BUILD
2025
↑Back to Top